STUDY OF DETERMINATION SHEAR STRENGTH PARAMETERS OF BOULDERY SOILS USING CALIBRATION CHAMBER IN LABORATORIES
Research Team : Dr. Peregrinus Dhae Siga Taa, Prof. Paulus P. Rahardjo, Prof. Dr. A. Aziz Djajaputra
Year : 2018
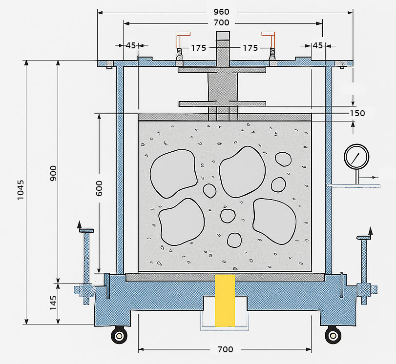
Abstract : In nature, the soil and rocks mix in one unit that can form a hill or valley. The soil is a loose material, resulting from weathering of rocks less than 2 mm in size. While the size of rocks in nature there are various sizes of gravel to boulder. In geotechnical work sometimes encountered slope material in the form of a soil-rock mixture which is dominated by soil material mixed with the granular material (gravel and boulder). This soil and rock mixture is said to be a bouldery soil material. Called bouldery soils material is based on the fact in the field where the type of geomaterial is very inhomogeneous which contains a number and size of certain boulder mixed with sand and gravel soil. Determination of shear strength parameters on the condition of soil material only or the condition of rock material using direct shear test and the triaxial test is now commonly done in the laboratory. But to get the shear strength parameters in the bouldery soils material, a test tool is needed to be able to measure the shear strength parameters of the material mixture. The difference in the condition of the bouldery soils material is the development of a calibration chamber with its testing method as a large-scale triaxial test and pressuremeter (PMT) test in the laboratory. With the dimensions of the chamber that can be used as a container or sample media measuring 60 cm x 60 cm (height x diameter). Laboratory testing and PMT tests are carried out, the examination of soil grain size distributions and using disturbed samples by reconstituted samples in the calibration chamber. In this study multistage triaxial test and multistage pressuremeter test were conducted in the calibration chamber. Variations in the number of boulder used are 0% boulder, and with a mixture of sand soil material with a percentage / composition of boulder 10%, 20%, 30%, 40%, 50% and 60% boulder by applying cell pressure, (σ3 ) of 0.4 kg/cm², 0.8 kg/cm² and 1.6 kg/cm². The test results of the two methods were analyzed using the Mohr-Coulomb model and the hyperbolic model and produced the value of the internal friction angle (⏀) and cohesion (c) the parameters of the bouldery soils ground shear strength. Furthermore, the PMT test results in the calibration chamber, get parameters, P0, PL, PE and EM and further analyzed to obtain the value of the internal friction angle (⏀). The results of the triaxial test analysis of bouldery soils material using Mohr-Coulomb criteria showed that the addition of a percentage of boulder in the bouldery soil material resulted in a higher friction angle value (⏀) and cohesion (c) parameters. Thus shows the grain size distribution, the number of the boulder (the addition of boulder percentages) becomes a determination obtaining the bouldery soils shear strength parameters. The results of the PMT bouldery soils test in the calibration chamber in the laboratory, resulting in a value of stiffness or modulus of soil deformation, varying EMt. At the size of the soil grain, the number of the stones (the addition of stone percentage) and the change in confining stress (σ3) affect the value of the internal friction angle (⏀) and the cohesion of bouldery soils material.




%Boulder vs Cohesion %Boulder vs friction angle (⏀)